| Property Address | place | 34045 Hwy 26, Seaside OR |
| Legal Description | label | Metes & Bounds |
| Account ID | work | 4692 |
| Tax Map Key | flag | 510140001500 |
| Size in Acres | map | 2.91 |
| Property Status | check_box | Active |
| Property Type | waves | Real Property Tracts Improved Tract Land |
| Owner Name | person |
Jones Donnie Jones Shasta |
| Mailing Address | local_post_office |
34045 Highway 26 Seaside OR 97138 |
| arrow_right_alt | Request Change of Address | |
| arrow_right_alt | Sign up for e-Statements |
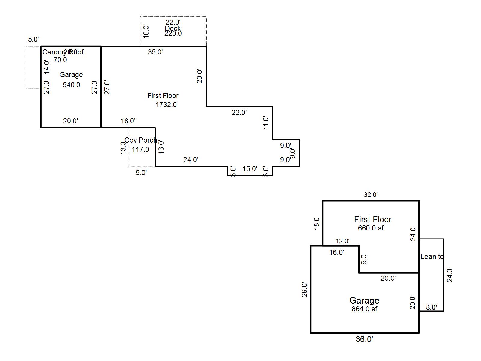
| Year Built | Sq Ft | Type | Stories |
|---|---|---|---|
| 1960 | 1732 | 1 Story | 1.0 |
| Floor Type | Sq Ft | Bedrooms | Bathrooms |
|---|---|---|---|
| First Floor | 1732 | 3 | 2 |
| Year | Land Value | Improvements Value | Real Market Value | Assessed Value |
|---|---|---|---|---|
| 2025 | $213,856.00 | $490,076.00 | $703,932.00 | $411,188.00 |
| 2024 | $213,856.00 | $492,872.00 | $706,728.00 | $399,213.00 |
| 2023 | $196,198.00 | $527,307.00 | $723,505.00 | $387,587.00 |
| 2022 | $178,362.00 | $490,360.00 | $668,722.00 | $352,542.00 |
| 2021 | $143,144.00 | $379,316.00 | $522,460.00 | $342,274.00 |
| 2020 | $125,565.00 | $317,894.00 | $443,459.00 | $332,306.00 |
| 2019 | $125,565.00 | $319,691.00 | $445,256.00 | $322,628.00 |
| 2018 | $133,580.00 | $279,586.00 | $413,166.00 | $313,232.00 |
| 2017 | $151,796.00 | $230,449.00 | $382,245.00 | $304,110.00 |
| 2016 | $151,796.00 | $203,294.00 | $355,090.00 | $295,254.00 |
| 2015 | $151,795.00 | $177,774.00 | $329,569.00 | $286,656.00 |
| 2014 | $145,957.00 | $171,895.00 | $317,852.00 | $278,308.00 |
| 2013 | $145,957.00 | $156,963.00 | $302,920.00 | $270,203.00 |
| 2012 | $169,717.00 | $174,403.00 | $344,120.00 | $262,334.00 |
| 2011 | $190,694.00 | $187,999.00 | $378,693.00 | $254,695.00 |
| 2010 | $174,949.00 | $189,518.00 | $364,467.00 | $247,278.00 |
| 2009 | $182,238.00 | $205,998.00 | $388,236.00 | $240,077.00 |
| 2008 | $184,079.00 | $257,498.00 | $441,577.00 | $233,085.00 |
| 2007 | $139,453.00 | $231,979.00 | $371,432.00 | $226,297.00 |
| 2006 | $118,181.00 | $214,796.00 | $332,977.00 | $219,707.00 |
| 2005 | $113,688.00 | $51,736.00 | $165,424.00 | $127,590.00 |
| 2004 | $105,267.00 | $47,033.00 | $152,300.00 | $123,875.00 |
| 2003 | $102,201.00 | $47,509.00 | $149,710.00 | $120,268.00 |
| 2002 | $101,190.00 | $45,247.00 | $146,437.00 | $116,766.00 |
| 2001 | $100,189.00 | $45,705.00 | $145,894.00 | $113,366.00 |
| 2000 | $94,518.00 | $50,226.00 | $144,744.00 | $110,065.00 |
| 1999 | $87,517.00 | $55,194.00 | $142,711.00 | $106,860.00 |
| Sales Date | Instrument ID | Sale Amount |
|---|---|---|
| April 25, 2023 | 202302010 | $699,000.00 |
| September 12, 2019 | 201906797 | $378,000.00 |
| September 5, 2019 | 201906573 | $447,580.00 |
| Tax Year | Total Billed | Interest | Total Due |
|---|---|---|---|
| 2025 | $5,286.72 | $0.00 | $0.00 |
| 2024 | $5,115.01 | $0.00 | $0.00 |
| 2023 | $4,958.57 | $0.00 | $0.00 |
| 2022 | $4,531.73 | $0.00 | $0.00 |
| 2021 | $4,434.12 | $0.00 | $0.00 |
| 2020 | $4,327.58 | $0.00 | $0.00 |
| 2019 | $4,205.77 | $0.00 | $0.00 |
| 2018 | $4,028.87 | $0.00 | $0.00 |
| 2017 | $3,813.67 | $0.00 | $0.00 |
| 2016 | $3,303.22 | $0.00 | $0.00 |
| 2015 | $3,186.19 | $0.00 | $0.00 |
| 2014 | $3,058.12 | $0.00 | $0.00 |
| 2013 | $2,963.10 | $0.00 | $0.00 |
| 2012 | $3,007.09 | $0.00 | $0.00 |
| 2011 | $2,952.37 | $0.00 | $0.00 |
| 2010 | $2,914.86 | $0.00 | $0.00 |
| 2009 | $2,849.07 | $0.00 | $0.00 |
| 2008 | $2,747.09 | $0.00 | $0.00 |
| 2007 | $2,669.37 | $0.00 | $0.00 |
| 2006 | $2,596.53 | $0.00 | $0.00 |
| 2005 | $1,480.90 | $0.00 | $0.00 |
| 2004 | $1,435.61 | $0.00 | $0.00 |
| 2003 | $1,392.52 | $0.00 | $0.00 |
| 2002 | $1,365.90 | $0.00 | $0.00 |
| 2001 | $1,356.99 | $0.00 | $0.00 |
| 2000 | $1,361.94 | $0.00 | $0.00 |
| 1999 | $1,218.97 | $0.00 | $0.00 |
| 1998 | $1,217.60 | $0.00 | $0.00 |

By clicking "Pay online", you agree that you have read our Important Notes regarding fees.
View printable statement| Tax Year | Receipt No | Date Posted | Amount Paid |
|---|---|---|---|
| 2025 | 710343 | November 14, 2025 | $5,128.12 |
| 2024 | 692650 | November 14, 2024 | $4,961.56 |
| 2023 | 675754 | November 14, 2023 | $4,809.81 |
| 2022 | 659350 | November 12, 2022 | $4,395.78 |
| 2021 | 643723 | November 9, 2021 | $4,301.10 |
| 2020 | 629956 | November 15, 2020 | $4,197.75 |
| 2019 | 607652 | October 15, 2019 | $4,079.60 |
| 2016 | 607212 | September 13, 2019 | $4,668.51 |
| 2017 | 607212 | September 13, 2019 | $4,779.79 |
| 2018 | 607212 | September 13, 2019 | $4,404.89 |
| 2015 | 603255 | May 2, 2019 | $1,781.69 |
| 2015 | 567142 | August 29, 2017 | $1,000.00 |
| 2015 | 566142 | July 3, 2017 | $1,500.00 |
| 2014 | 553132 | November 10, 2016 | $1,102.02 |
| 2014 | 547507 | August 29, 2016 | $600.00 |
| 2014 | 545396 | June 6, 2016 | $400.00 |
| 2014 | 543472 | May 5, 2016 | $300.00 |
| 2014 | 543107 | April 25, 2016 | $300.00 |
| 2014 | 530588 | November 6, 2015 | $1,000.00 |
| 2013 | 509608 | November 5, 2014 | $121.09 |
| 2013 | 506801 | October 28, 2014 | $1,019.37 |
| 2013 | 495246 | April 3, 2014 | $2,000.00 |
| 2011 | 473688 | April 8, 2013 | $2,296.28 |
| 2012 | 473688 | April 8, 2013 | $3,100.65 |
| 2011 | 437415 | November 3, 2011 | $984.12 |
| 2010 | 431582 | August 30, 2011 | $77.73 |
| 2010 | 431002 | August 9, 2011 | $3,070.31 |
| 2009 | 389143 | November 10, 2009 | $2,763.60 |
| 2008 | 364400 | November 7, 2008 | $2,664.68 |
| 2007 | 329371 | October 25, 2007 | $2,589.29 |
| 2006 | 296726 | October 18, 2006 | $2,518.63 |
| 2005 | 278361 | November 15, 2005 | $1,436.47 |
| 2004 | 229671 | November 5, 2004 | $1,392.54 |
| 2003 | 188745 | October 30, 2003 | $1,350.74 |
| 2002 | 164075 | November 15, 2002 | $1,324.92 |
| 2001 | 119696 | November 5, 2001 | $1,316.28 |
| 2000 | 97191 | November 15, 2000 | $1,321.08 |
| 1999 | 58234 | November 15, 1999 | $1,182.40 |
| 1998 | 22308 | November 4, 1998 | $1,181.07 |