| Property Address | place | 90713 Fort Clatsop Rd, Astoria OR |
| Legal Description | label | Metes & Bounds |
| Account ID | work | 54780 |
| Tax Map Key | flag | 710120000500 |
| Size in Acres | map | 5.00 |
| Property Status | check_box | Active |
| Property Type | waves | Real Property Farm Improved EFU Land |
| Owner Name | person |
Cowan Neal B Cowan Melody L |
| Mailing Address | local_post_office |
14720 Tideland Rd Nehalem OR 97131 |
| arrow_right_alt | Request Change of Address | |
| arrow_right_alt | Sign up for e-Statements |
| 16660 | link | 90713 Fort Clatsop Rd, Astoria OR |
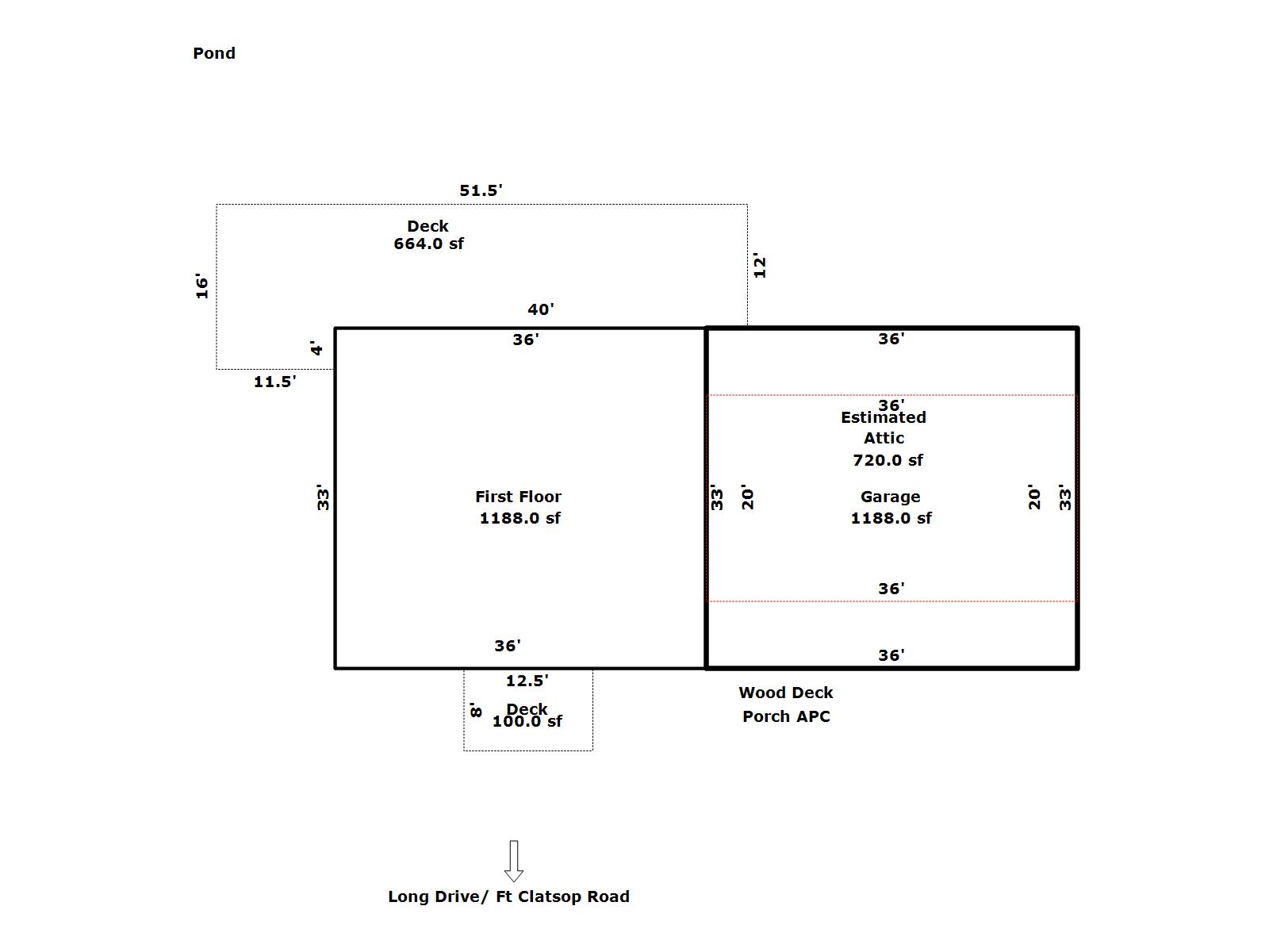
| Year Built | Sq Ft | Type | Stories |
|---|---|---|---|
| 2009 | 1908 | 1 Story w/ Attic | 1.0 |
| Floor Type | Sq Ft | Bedrooms | Bathrooms |
|---|---|---|---|
| Attic | 720 | 0 | |
| First Floor | 1188 | 1 | 1 |
| Year | Land Value | Improvements Value | Real Market Value | Assessed Value |
|---|---|---|---|---|
| 2025 | $60,059.00 | $379,323.00 | $439,382.00 | $238,709.00 |
| 2024 | $60,059.00 | $381,605.00 | $441,664.00 | $232,077.00 |
| 2023 | $55,099.00 | $408,434.00 | $463,533.00 | $225,069.00 |
| 2022 | $50,088.00 | $366,840.00 | $416,928.00 | $218,241.00 |
| 2021 | $32,525.00 | $295,174.00 | $327,699.00 | $210,160.00 |
| 2020 | $28,038.00 | $291,086.00 | $319,124.00 | $203,776.00 |
| 2019 | $24,171.00 | $273,573.00 | $297,744.00 | $197,585.00 |
| 2018 | $24,172.00 | $277,912.00 | $302,084.00 | $192,036.00 |
| 2017 | $23,467.00 | $234,815.00 | $258,282.00 | $186,541.00 |
| 2016 | $91,088.00 | $208,950.00 | $300,038.00 | $188,225.00 |
| 2015 | $82,808.00 | $173,601.00 | $256,409.00 | $182,671.00 |
| 2014 | $82,806.00 | $163,098.00 | $245,904.00 | $188,247.00 |
| 2013 | $88,093.00 | $133,132.00 | $221,225.00 | $182,773.00 |
| 2012 | $102,433.00 | $122,526.00 | $224,959.00 | $177,469.00 |
| 2011 | $113,815.00 | $122,526.00 | $236,341.00 | $172,313.00 |
| 2010 | $247,608.00 | $144,365.00 | $391,973.00 | $160,196.00 |
| 2009 | $232,030.00 | $2,176.00 | $234,206.00 | $68,414.00 |
| 2008 | $229,733.00 | $3,109.00 | $232,842.00 | $66,440.00 |
| 2007 | $198,046.00 | $15,705.00 | $213,751.00 | $64,519.00 |
| 2006 | $146,701.00 | $13,657.00 | $160,358.00 | $62,648.00 |
| 2005 | $107,780.00 | $54,302.00 | $162,082.00 | $60,831.00 |
| Sales Date | Instrument ID | Sale Amount |
|---|---|---|
| February 25, 2020 | 202001524 | $500,000.00 |
| Tax Year | Total Billed | Interest | Total Due |
|---|---|---|---|
| 2025 | $3,631.15 | $0.00 | $0.00 |
| 2024 | $3,539.06 | $0.00 | $0.00 |
| 2023 | $3,411.80 | $0.00 | $0.00 |
| 2022 | $3,258.94 | $0.00 | $0.00 |
| 2021 | $3,145.33 | $0.00 | $0.00 |
| 2020 | $3,052.83 | $0.00 | $0.00 |
| 2019 | $2,957.43 | $0.00 | $0.00 |
| 2018 | $2,678.22 | $0.00 | $0.00 |
| 2017 | $2,526.77 | $0.00 | $0.00 |
| 2016 | $2,597.18 | $0.00 | $0.00 |
| 2015 | $2,446.87 | $0.00 | $0.00 |
| 2014 | $2,376.74 | $0.00 | $0.00 |
| 2013 | $2,301.56 | $0.00 | $0.00 |
| 2012 | $2,258.87 | $0.00 | $0.00 |
| 2011 | $2,258.21 | $0.00 | $0.00 |
| 2010 | $2,224.69 | $0.00 | $0.00 |
| 2009 | $375.81 | $0.00 | $0.00 |
| 2008 | $512.64 | $0.00 | $0.00 |
| 2007 | $651.16 | $0.00 | $0.00 |
| 2006 | $589.09 | $0.00 | $0.00 |
| 2005 | $804.56 | $0.00 | $0.00 |

By clicking "Pay online", you agree that you have read our Important Notes regarding fees.
View printable statement| Tax Year | Receipt No | Date Posted | Amount Paid |
|---|---|---|---|
| 2025 | 708397 | November 7, 2025 | $3,522.22 |
| 2024 | 690216 | November 4, 2024 | $3,432.89 |
| 2023 | 673814 | November 8, 2023 | $3,309.45 |
| 2022 | 660219 | November 14, 2022 | $3,161.17 |
| 2021 | 642361 | November 1, 2021 | $3,050.97 |
| 2020 | 627854 | November 5, 2020 | $2,961.25 |
| 2019 | 614150 | November 14, 2019 | $2,868.71 |
| 2018 | 592740 | November 7, 2018 | $2,597.87 |
| 2017 | 577208 | November 15, 2017 | $2,450.97 |
| 2016 | 557780 | November 15, 2016 | $2,519.26 |
| 2015 | 536132 | November 16, 2015 | $2,373.46 |
| 2014 | 513366 | November 15, 2014 | $2,422.03 |
| 2013 | 484004 | November 6, 2013 | $2,232.51 |
| 2012 | 466328 | November 15, 2012 | $2,191.10 |
| 2011 | 444106 | November 15, 2011 | $2,190.46 |
| 2010 | 427660 | May 16, 2011 | $741.57 |
| 2010 | 423121 | February 15, 2011 | $517.57 |
| 2010 | 417886 | November 15, 2010 | $741.56 |
| 2010 | 414912 | November 12, 2010 | $224.00 |
| 2009 | 396387 | January 4, 2010 | $3.34 |
| 2009 | 395754 | December 18, 2009 | $375.81 |
| 2008 | 377132 | April 29, 2009 | $170.88 |
| 2008 | 373169 | February 11, 2009 | $170.88 |
| 2008 | 369203 | November 17, 2008 | $170.88 |
| 2007 | 354164 | May 15, 2008 | $217.06 |
| 2007 | 340802 | November 15, 2007 | $425.42 |
| 2006 | 305791 | November 14, 2006 | $571.42 |
| 2005 | 268051 | November 3, 2005 | $780.42 |